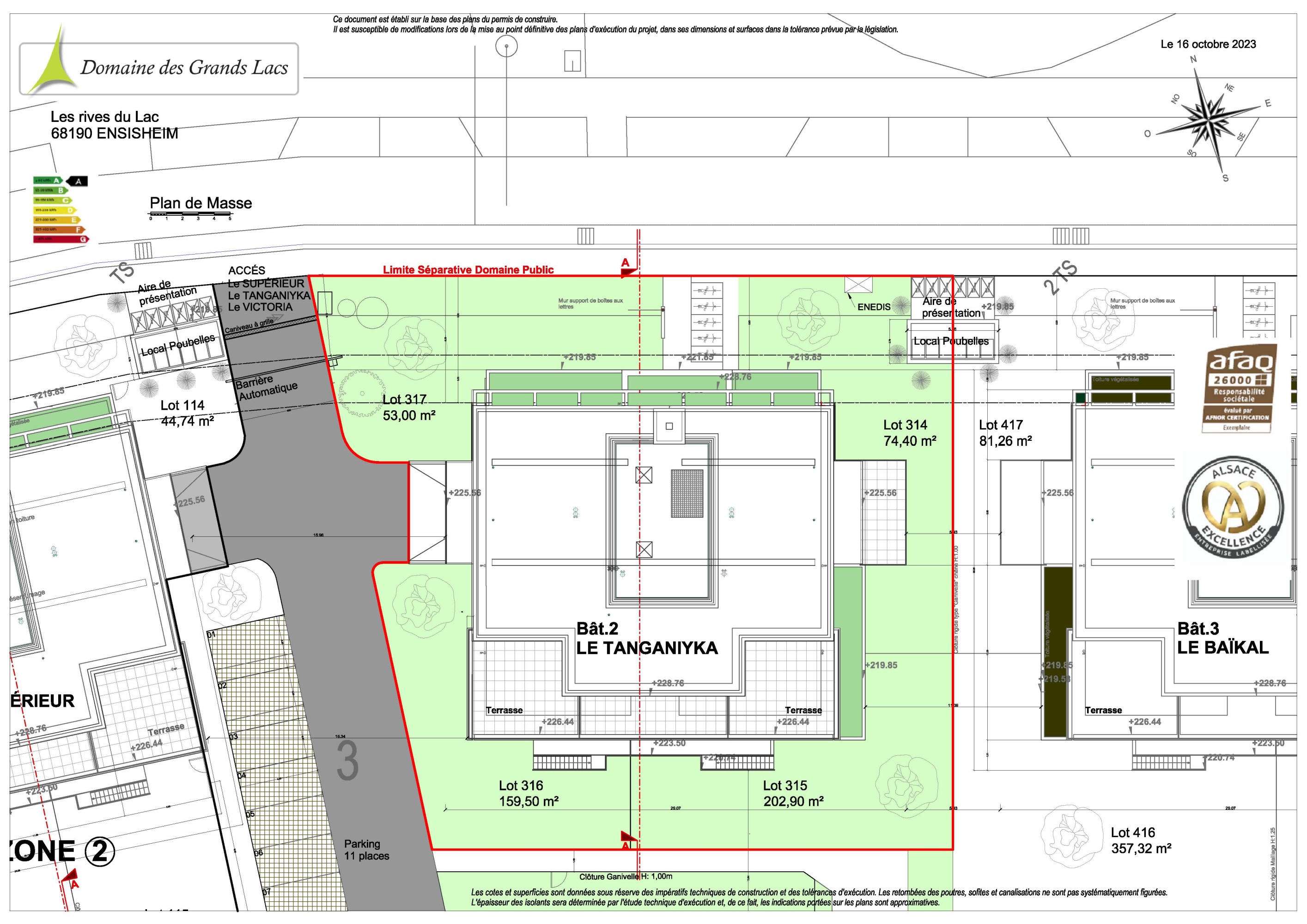
Résidence Le Tanganyika

Appartements neufs à Ensisheim – Stade carrelage et peinture, 3 derniers logements

68190 ENSISHEIM

Logements disponibles

3 pièces 73 m²
À partir de 265 100 €
Plus d'infos
Attique 4/5 pièces 93 à 94 m²
À partir de 436 100 €
Plus d'infos
Garage deux voitures 30 m²
À partir de 20 000 €
Plus d'infos
Grand garage deux voitures 37 m²
À partir de 30 000 €
Plus d'infos

Performance Énergétique RT2012 niveau RE2020-25

A
Consommation énergétique
41 kWhEP/m²/an
A
Émissions de GES
1 kgéqCO2/m²/an
Coût annuel estimé
300 
Charges de copropriété estimées
€/m²/mois

Coûts annuels estimés

Résidence Le Tanganyika 300 
RT 2012 1 200 
RT 2005 2 400 

Estimation annuelle


Consommation énergie primaire

A≤ 50
41
B51 à 90
C91 à 150
D151 à 230
E231 à 330
F331 à 450
G> 450

kWhEP/m²/an

Émissions de GES

A≤ 5
1
B6 à 10
C11 à 20
D21 à 35
E36 à 55
F56 à 80
G> 80

kgéqCO₂/m²/an

Proche du centre-ville, mais localisée aux abords de la nature (lac des Oréades, forêt, champs), la résidence tire parti d’une place dynamique et agréable ainsi que de la proximité de toutes les commodités utiles telles que : médecins, pharmacie, boulangerie, supermarchés, périscolaires, école primaire et collège, transports en commun, banques, restaurants, axe routier/autoroutier vers Colmar, Mulhouse et l’Allemagne…

Votre futur logement est situé dans l’une des petites résidences composant le Domaine des Grands Lacs.

La petite résidence "Le Tanganyika" comporte 11 logements intimistes pour 11 privilégiés !

C'est une résidence aux dernières normes environnementales et énergétiques qui vous propose une qualité phonique et thermique d'excellences.

Nouveauté de notre gamme de logements : Nous vous offrons le confort d'été avec le rafraîchissement de votre logement.

L'acquisition de ce logement vous permet de contribuer au respect de notre environnement à travers nos engagements forts, validés et contrôlés par Idée Alsace / Initiatives Durables, l'AFNOR et Marque Alsace Excellence OR.

Notre politique environnementale et locale trouve tout son sens dans notre rôle de bâtisseur d'avenir.

Une résidence où sérénité et bien-être sont conjugués.

Livraison mi-2026.

Plus que 3 logements de disponibles.

Label RT2012 niveau RE2020-25

Le label RT2012 niveau RE2020-25 atteste d'une construction à haute performance énergétique, avec des consommations réduites, une isolation renforcée et un confort thermique durable tout au long de l'année.

Reportage de chantier

mars 2026
Photo du chantier - Résidence Le Tanganyika
Photo du chantier - Résidence Le Tanganyika
mars 2026
Photo du chantier - Résidence Le Tanganyika

Documents à télécharger

Bien-être et personnalisation

Profitez d'un large choix de finitions et de matériaux haut de gamme, avec des garanties pour un projet en toute confiance
Vos garanties d'achat chez FL Résidences
Les garanties FL Résidences
L'harmonie retrouvée : habiter la nature, vivre l'exception
Devenir propriétaire
Le bien-être absolu : un refuge de confort et de performance dans un logement neuf
Bien-être et confort
Les prestations chez FL Résidences
Prestations
Le cœur de votre foyer : une cuisine haute couture
Côté cuisine
Travaux modificatifs acquéreurs : un intérieur à votre image
Vos personnalisations